
Pastorale ad innesto INNER per parli da videosorveglianza tipo 316
Codice 629
Categoria: Pali e bracci per videosorveglianza
Descrizione
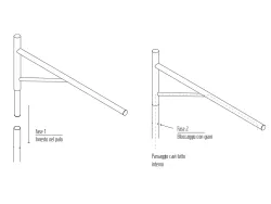
Braccio in acciaio con attacco a innesto in palo predisposto come accessorio dei pali per video sorveglianza (COD 316.9).
Il braccio è formato da :
tubo diametro 76 mm, in acciaio zincato altezza 1000 mm di cui 400 mm all'interno del palo,
tubo diametro 60 mm, in acciaio zincato lunghezza 2000 mm saldato orizzontalmente e collegato al corpo centrale da tubo Ø42 mm
Il pastorale è terminato da tappi in PVC.
Il passaggio cavi è integralmente interno.
Il pastorale viene bloccato al palo tramite grani in acciaio inox.
Montaggio come da disegno.
Protezione delle superfici:
vedi specifiche sulla protezione dei materiali.


